Asokoro

BlackDiamond Residence

Exclusive living in a prime Asokoro location.

The BlackDiamond Residence is a carefully designed 5-bedroom home located in the highbrow area of Asokoro, one of Abuja’s most prestigious districts. The residence features 2 spacious living rooms, a maid’s room, a private cinema, and a spa for relaxation and rejuvenation. Spread across four levels — basement, ground, first and second floor — this stunning home offers an exclusive living experience in a prime location within the heart of Abuja.

Gallery

BlackDiamond Residence — Aerial Estate View

Key Features

5 Bedrooms (all en-suite)
Private Cinema (22 m²)
Spa & General Store (26 m²)
Private Gym (17 m²)
Full Home Automation
2 Living Rooms (Lounge + Family)
Maid’s Room (16 m²)
Home Office (11 m²)
Master Suite with Walk-in Closet (20 m²)
Master Bathroom (16 m²)
Madam Bedroom with Balcony & Walk-in Closet
4-Level Layout (Basement to Second Floor)

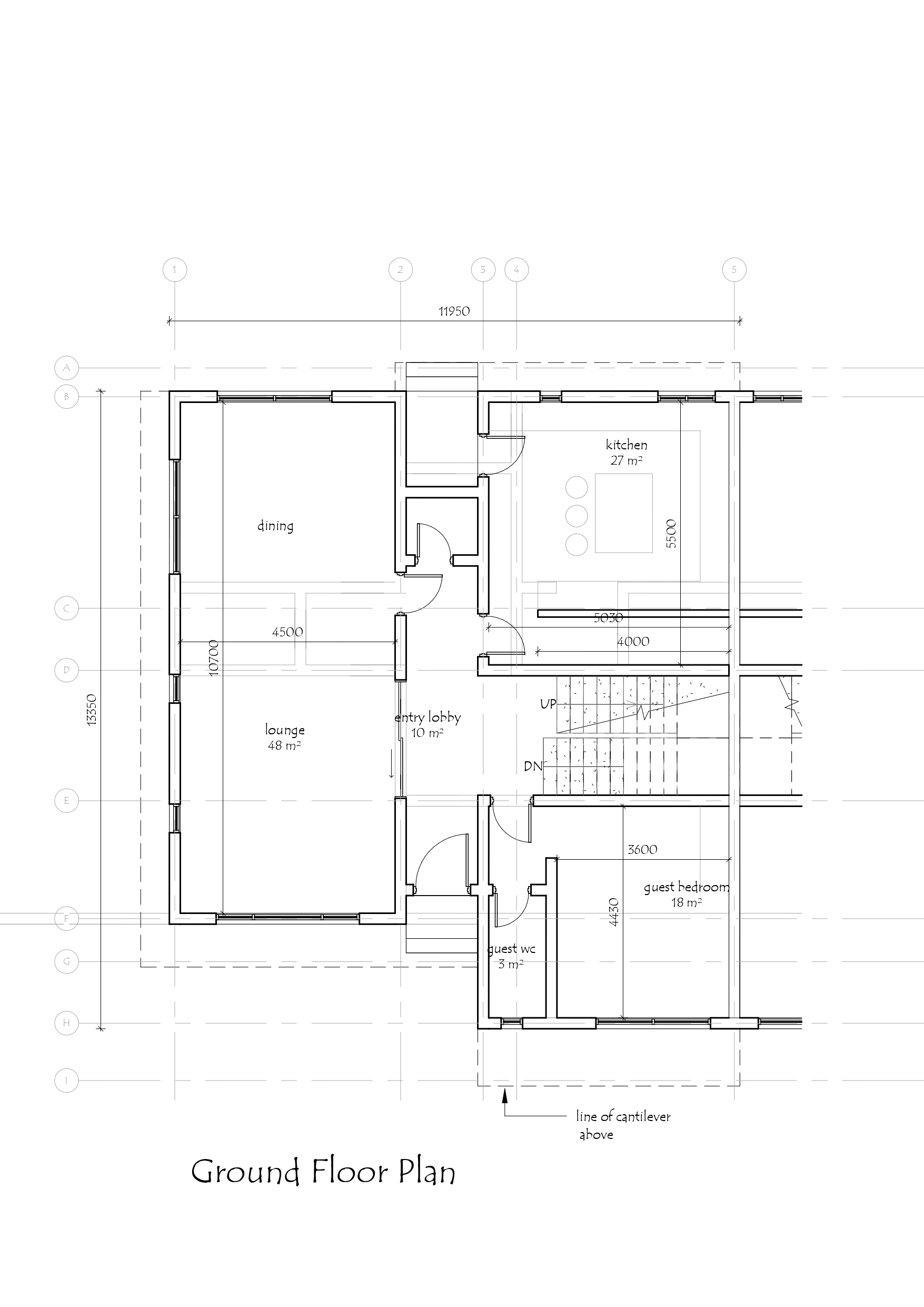
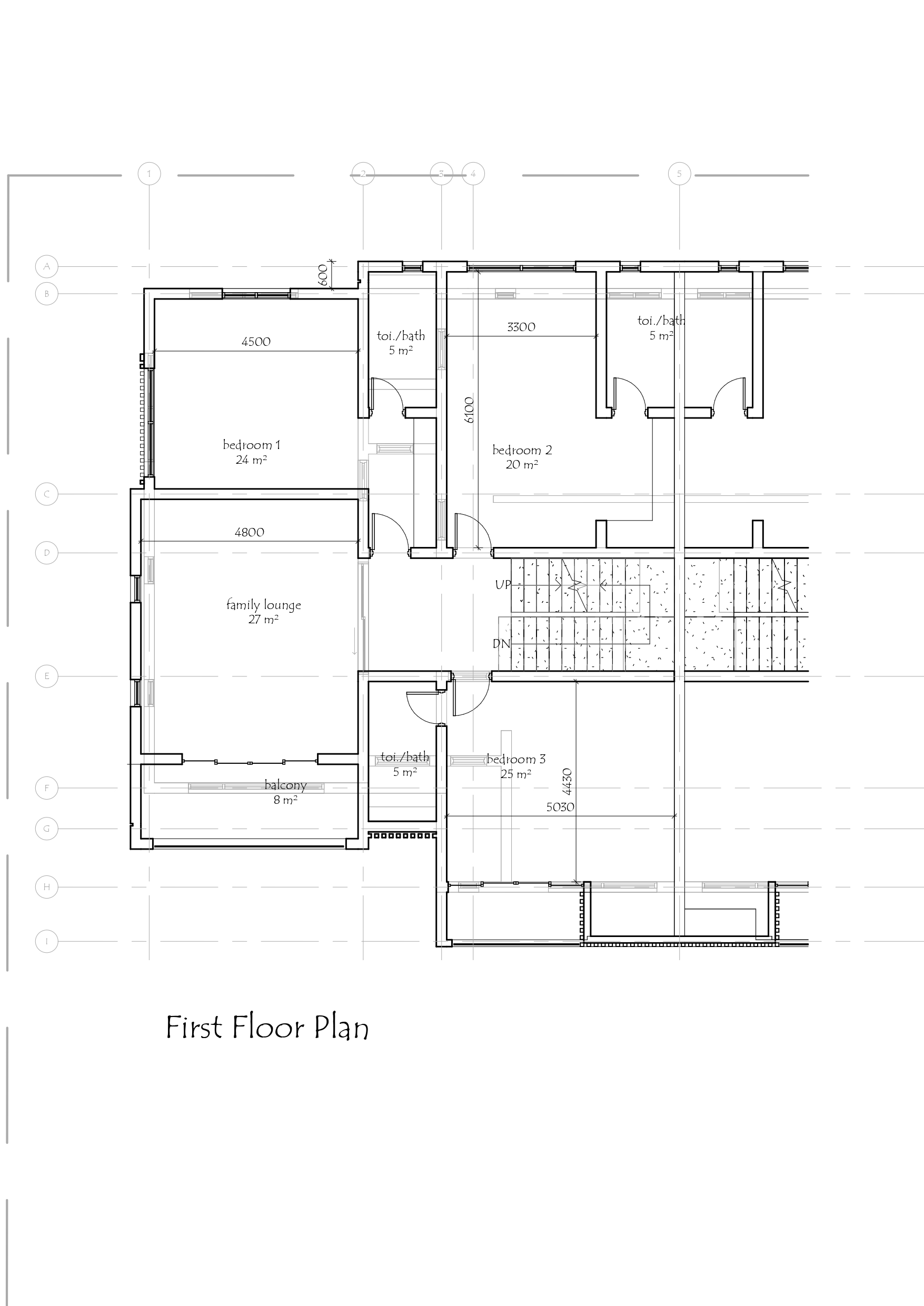
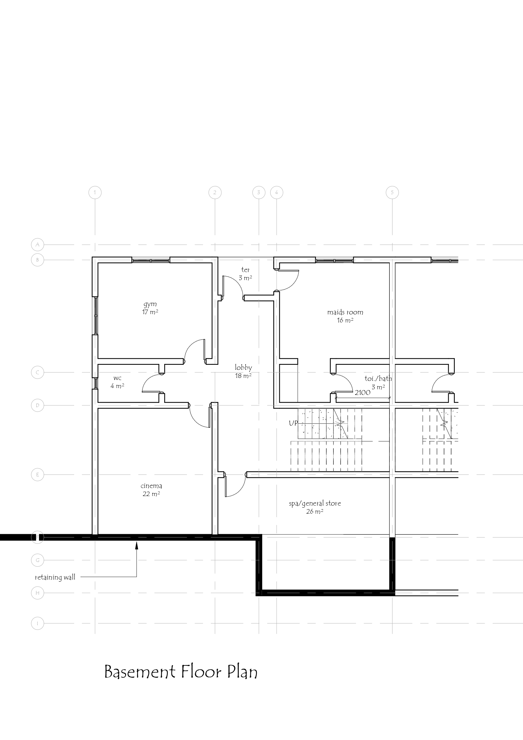
Floor Plans

Basement Floor Plan

Basement — Gym (17 m²) · Cinema (22 m²) · Spa/General Store (26 m²) · Maid’s Room (16 m²) · Lobby (18 m²)

BlackDiamondResidence Pack 01 1 Page 0002

Ground Floor — Lounge (48 m²) · Kitchen (27 m²) · Dining · Entry Lobby (10 m²) · Guest Bedroom (18 m²) · Guest WC

First Floor Plan

First Floor — Bedroom 1 (24 m²) · Bedroom 2 (20 m²) · Bedroom 3 (25 m²) · Family Lounge (27 m²) · Balcony (8 m²)

BlackDiamondResidence Pack 01 1 Page 0004

Second Floor — Master Bedroom (22 m²) · Madam Bedroom (24 m²) · Office (11 m²) · Walk-in Closets (8 m² + 20 m²) · Master Bath (16 m²) · Balcony (6 m²)

Ideal For

Established families seeking spacious luxury in Asokoro
High-net-worth individuals and diaspora investors
Senior executives and diplomats
Buyers who value a branded, architect-designed home
₦650M
5-Bedroom Detached Duplex
5
Bedrooms
4
Levels
Status: Completed
Location: Asokoro, Abuja
Levels: Basement + G + 1 + 2
Cinema: 22 m²
Spa: 26 m²
Gym: 17 m²